Топка Astov ПС 3865
05c16abf3e76
Доставка в Нижний Новгород
Удобство оплаты
Почему звонить в Очаг уже сейчас?
- Единая цена по всей России
- Бесплатная доставка
- Понимаем любой бюджет
- Считаем ВСЕ варианты
- Инструкции и видео для Монтажа
- Доступно, Оперативно, Профессионально
- Более 2 000 монтажей за 17 лет
Примеры работ #Степан_Знает
Видео галерея
Описание
Топка отопительного класса, с боковым открыванием дверцы. Красивый вид на огонь. Усиленный внешний корпус.
Внутренняя футеровка взаимозаменяема, на выбор. Топка подового горения – увеличенный КПД и лёгкость в уходе. Надёжно отопит и сохранит тепло.
Характеристики
Общие
Производитель:
Страна-производитель:
Россия
Остекление:
Материал корпуса:
Материал топки:
- Шамот
Конструкция топки:
Размеры
Диаметр дымохода:
150 мм
Общая ширина:
448 мм
Общая глубина:
454 мм
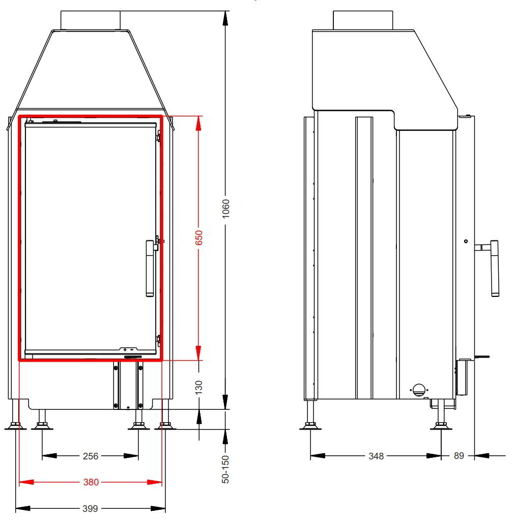
Общая высота:
1110 мм
Общий вес:
130-150 кг
Высота рамки:
650 мм
Ширина рамки:
448 мм
Производительность
Мощность:
5 кВт
КПД:
80%
Площадь отопления:
50 м²
Объем отопления:
125 м³
Использование для отопления:












