Каминная топка Romotop Heat 2G 70.44.01
c143b315ba5f
Доставка в Нижний Новгород
Удобство оплаты
Почему звонить в Очаг уже сейчас?
- Единая цена по всей России
- Бесплатная доставка
- Понимаем любой бюджет
- Считаем ВСЕ варианты
- Инструкции и видео для Монтажа
- Доступно, Оперативно, Профессионально
- Более 2 000 монтажей за 17 лет
Примеры работ #Степан_Знает
Видео галерея
Описание
Характеристики
Общие
Производитель:
Страна-производитель:
Чехия
Остекление:
Материал корпуса:
Материал топки:
- Вермикулит
Конструкция топки:
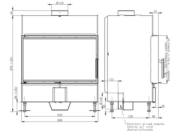
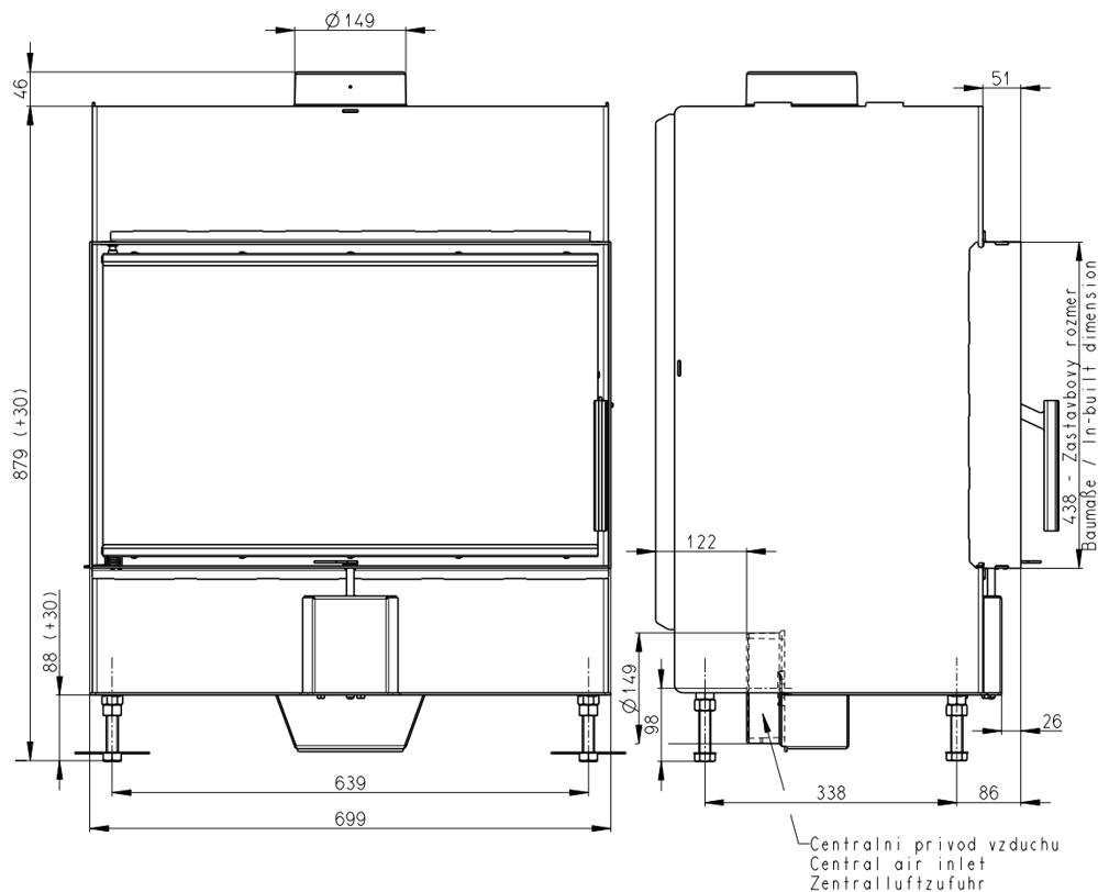
Размеры
Диаметр дымохода:
150 мм
Общая ширина:
699 мм
Общая глубина:
490 мм
Общая высота:
902 мм
Общий вес:
168 кг
Высота рамки:
407 мм
Ширина рамки:
664 мм
Производительность
Мощность:
8,1 кВт
КПД:
80,3%
Площадь отопления:
90 м²
Объем отопления:
225 м³
Использование для отопления:












