Каминная топка Spartherm A-3RL60H
b20b5a2e25bb
Доставка в Нижний Новгород
Удобство оплаты
Почему звонить в Очаг уже сейчас?
- Единая цена по всей России
- Бесплатная доставка
- Понимаем любой бюджет
- Считаем ВСЕ варианты
- Инструкции и видео для Монтажа
- Доступно, Оперативно, Профессионально
- Более 2 000 монтажей за 17 лет
Примеры работ #Степан_Знает
Видео галерея
Описание
Характеристики
Общие
Производитель:
Страна-производитель:
Германия
Остекление:
Материал корпуса:
Материал топки:
- Керамика
Конструкция топки:
Боковое стекло:
Трёхсторонняя
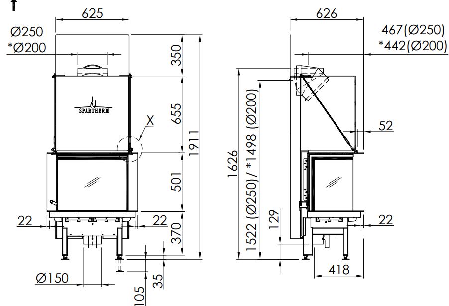
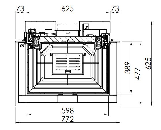
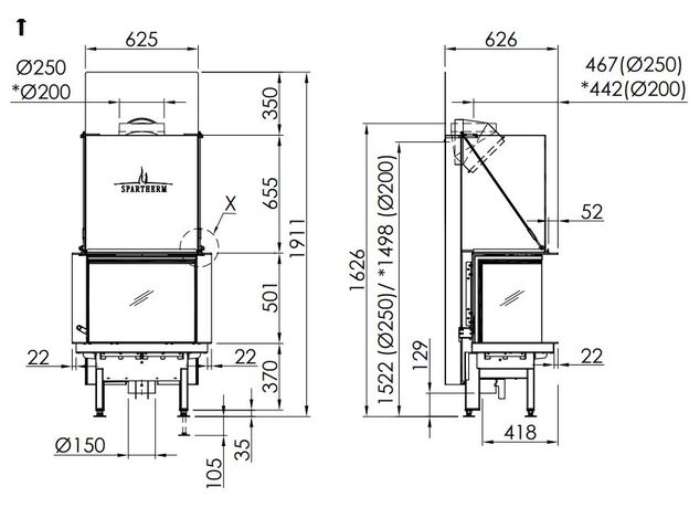
Размеры
Диаметр дымохода:
250 мм
Общая ширина:
772 мм
Общая глубина:
625 мм
Общая высота:
1626 мм
Общий вес:
279 кг
Ширина рамки:
598 мм
Производительность
Мощность:
10 кВт
КПД:
80%
Площадь отопления:
100 м²
Объем отопления:
250 м³
Использование для отопления:












