Печь-камин EcoKamin Бавария Оптима
883a12a4bbcd
Доставка в Нижний Новгород
Удобство оплаты
Почему звонить в Очаг уже сейчас?
- Единая цена по всей России
- Бесплатная доставка
- Понимаем любой бюджет
- Считаем ВСЕ варианты
- Инструкции и видео для Монтажа
- Доступно, Оперативно, Профессионально
- Более 2 000 монтажей за 17 лет
Примеры работ #Степан_Знает
Видео галерея
Описание
Характеристики
Общие
Производитель:
Страна-производитель:
Россия
Материал отделки:
Керамика
Материал топки:
- Шамот
Тип печи:
Размеры
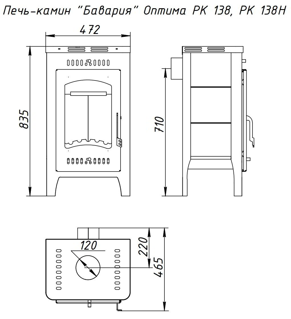
Диаметр дымохода:
120 мм
Общая ширина:
472 мм
Общая глубина:
465 мм
Общая высота:
835 мм
Общий вес:
86 кг
Производительность
Мощность:
6 кВт
КПД:
80%
Площадь отопления:
60 м²
Объем отопления:
150 м³
Использование для отопления:












